Description
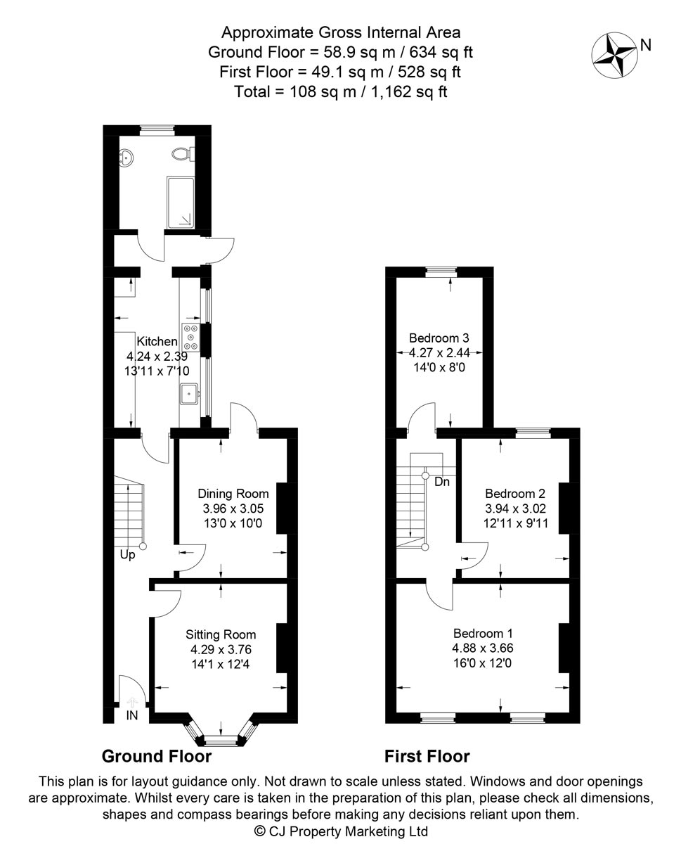
A four bedroom house with rear garden, located in Kingsholm a short walk from local shops. Large bathroom with double width shower. Reception room. Fully fitted kitchen with dishwasher and American style fridge freezer.
What we say:
This was a family home before we purchased it in 2019. The previous owners had looked after it well but we wanted to make an even better for our future tenants. We updated the large bathroom and added a huge shower and brought all four bedrooms up to a great standard.
What our housemates say:
All four of us brought loads of stuff to Uni so we wanted big bedrooms, we were delighted to find this house that not only had spacious bedrooms but was also in great condition.
Property Id : 28695
Price: £ 675 /per room per month
Bedrooms: 4
Custom ID: 147
Available from: 2024-07-08
Structure Type: Brick
Floors No: 2
Bills Included
Four Bedrooms
Furnished
Super Fast Broadband












































